Этаж:
Площадь блока: 18 700 м²
Отделка:
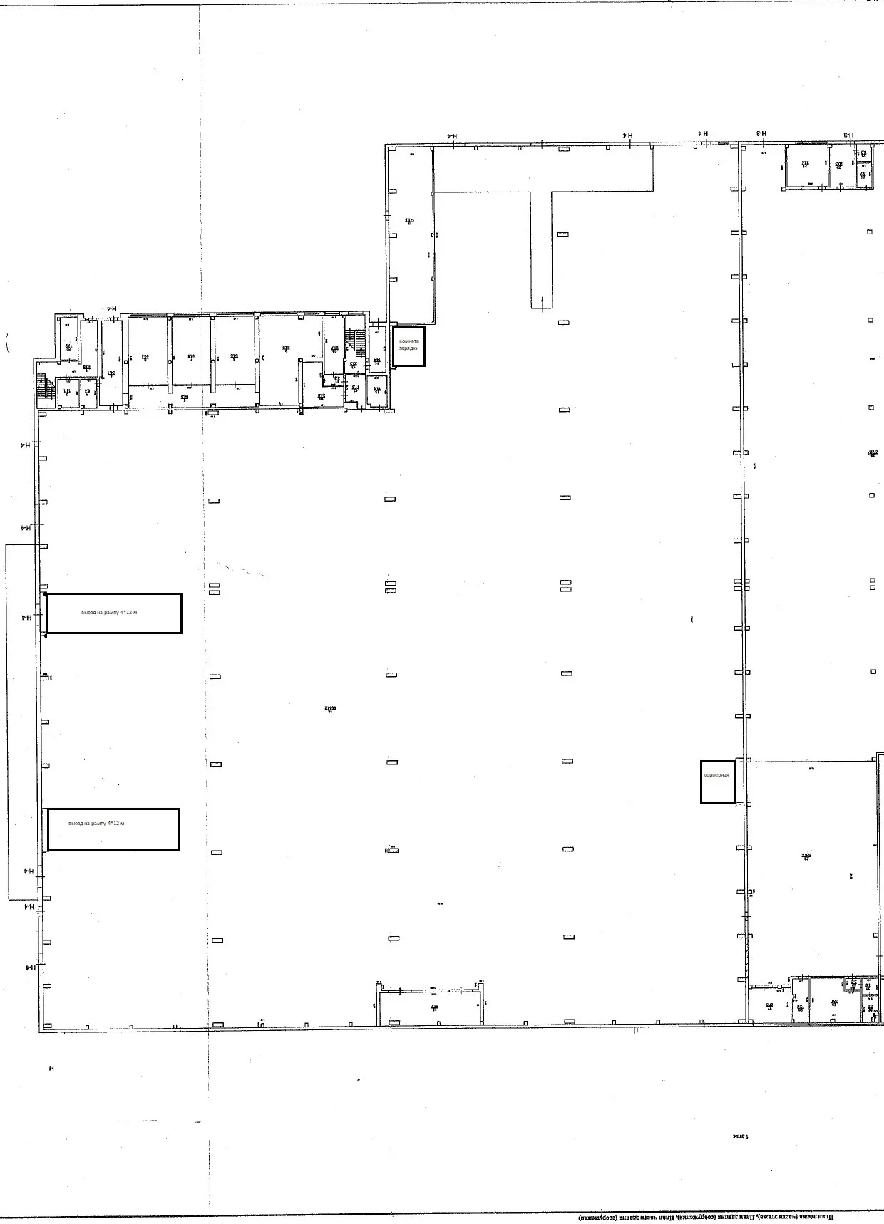
Сдается теплое складское помещение 18200 м2 административное здание 500 м2 (с возможностью расширения до 2000 м2). Введен в эксплуатацию в 2025 г. Современный качественный ремонт с учетом всех требований пожарной безопасности. Двое автоматических ворот с рампой под фуры. Рампа 50 м с тремя воротами под разгрузку мелких грузовых автомобилей. Двое ворот предназначенных для въезда большегрузной техники в склад. Освещение 250 люменов на 1 м2. Пожарный водопровод и станция, дымоудаление, аварийное освещение, автоматическая пожарная сигнализация с датчиками в трех уровнях, ровные, беспылевые полы по всей площади склада. Мокрая точка. Вокруг склада асфальтированные площадки, освещаемая рампа. Въезд с двух улиц: Мерлина и Шадрина. Видеонаблюдение, круглосуточная охрана. Просторная стоянка для грузовых автомобилей. Отопление- своя газовая котельная, температурный режим может регулироваться от +1 до 24 градусов., Сухой склад (+18)
Цена м² в месяц :650 р
Цена за склад в месяц :12 155 000 р
| Площадь |
| Вид помещения | Примечания | ||||
|---|---|---|---|---|---|---|---|
18 700 м² | 102.55 938 253 992 | Назначить просмотр | ![]() | ||||
Всего: 18 200 м² | |||||||

Комиссию за все объекты платят
собственники при заключении
сделки

Организуем переговоры
собственника и покупателя

Гарантируем нашим клиентам
полную конфиденциальность

Проверяем юридическую чистоту сделки,
поможем с составлением договора

Договоримся с собственником о просмотре выбранного склада в удобное для вас время.
Подберем альтернативы к просмотру, если выбранный склад не подойдет.
Поможем заключить договор на взаимно выгодных условиях.

Наш специалист перезвонит Вам в течение 60 минут
